
Energieeffizientes Fertighaus für die Zukunft
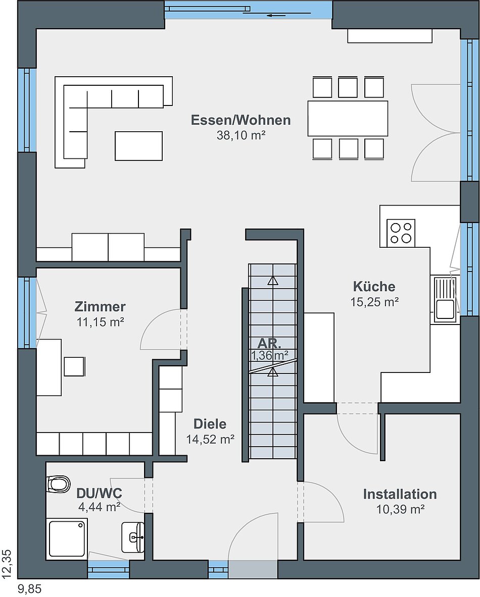
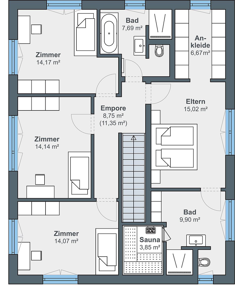
Dieses Einfamilienhaus bietet Platz für eine fünfköpfige Familie. Als Basis diente ein Haus aus der Baureihe generation5.5 mit etwa 180 Quadratmetern Wohnfläche. Die schlichte, weiß verputzte Fassade in Kombination mit den grauen Fensterrahmen sowie Dachziegeln verleiht dem Eigenheim einen zeitlosen Charakter.
Die Basis für ein gesünderes Wohnklima und einen geringen Energieverbrauch bildet die Gebäudehülle ÖvoNatur Therm, die bei allen Weber-Häusern Standard ist. Sie besteht ausschließlich aus umwelt- und gesundheitsverträglichen Materialien. Die notwendige Energie liefert die Photovoltaik-Anlage auf dem Dach, die durch einen Batteriespeicher ergänzt wird.

