
Alles auf einen Blick
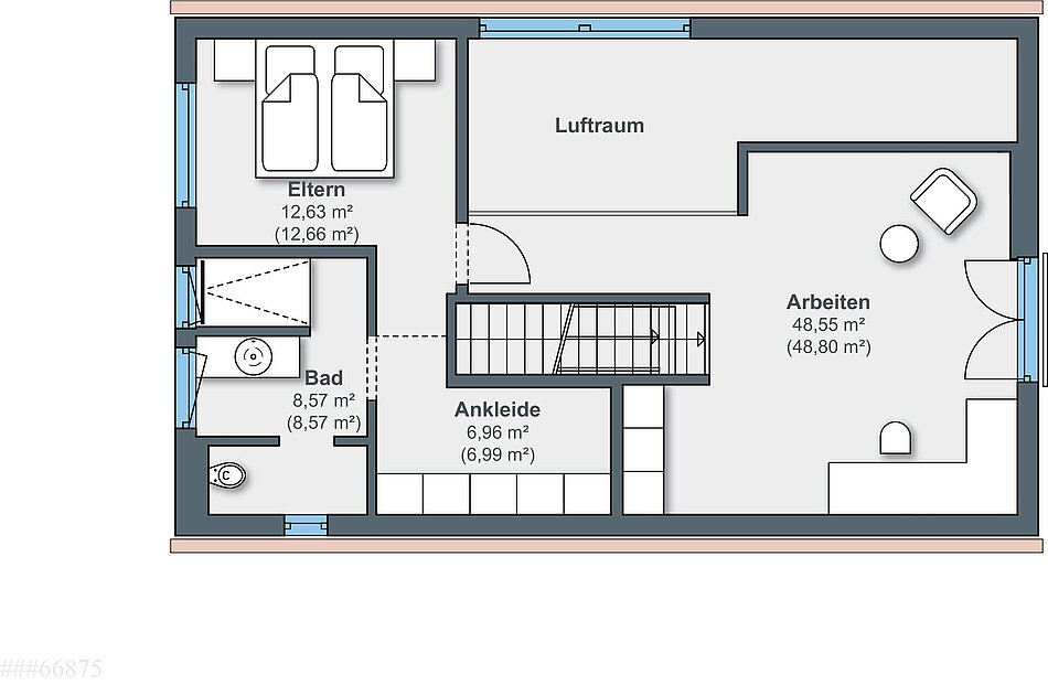
Außenmaße
7,47 x 12,47 m
Wohnfläche
156,15 m2
Architektur
2-geschossige Häuser
freigeplante Häuser
Dachform
Satteldach
Mehr Informationen?
Auch beim zweiten Mal wieder ein WeberHaus
Der Bauherr kannte die Qualität und Ausführung schon sehr gut, denn auch sein erstes Haus kam aus Rheinau-Linx. Überzeugt von Produkt und Service stand für ihn außer Frage, auch sein zweites Bauvorhaben von WeberHaus durchführen zu lassen. Entstanden ist ein Haus mit schickem Satteldach, energieeffizienter Solaranlage und der smarten WeberLogic-Haussteuerung. So komfortabel genießt das Paar zufrieden den schmalen aber smarten Grundriss, der mit rund 155 Quadratmetern ausreichend Platz zur eigenen Selbstverwirklichung bietet.

