
Balance 400
Alles auf einen Blick
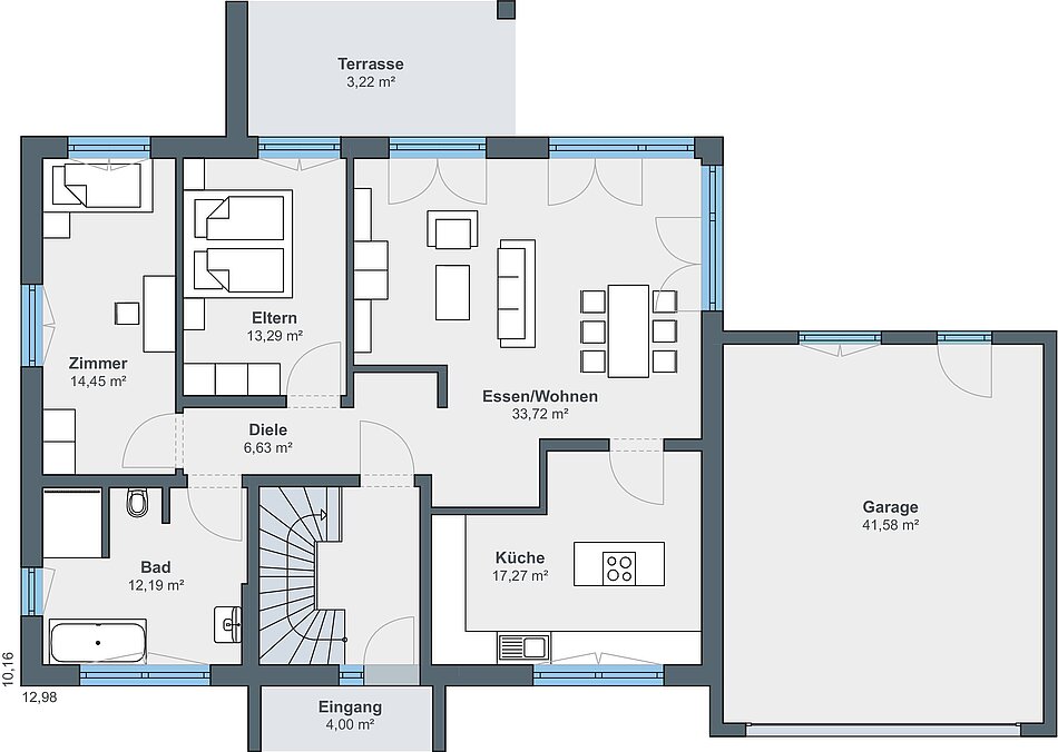
Außenmaße
10,16 x 12,98 m
Wohnfläche
209,87 m2
Architektur
2-geschossige Häuser
Bauhaus-Stil
Baureihe
Balance — 400
Dachform
Flachdach
Mehr Informationen?
Eigenheim im Bauhaus-Stil
Dieses moderne Haus mit zwei Vollgeschossen basiert auf der Baureihe Balance. Mit dem Flachdach, der weißen Putzfassade und den anthrazitgrauen Fensterrahmen verfügt der Neubau über eine edle und moderne Anmutung. Die Vorderseite zeigt sich zurückhaltend, während sich die Rückseite zum Garten hin dank großer Fensterflächen öffnet. Mit Blick in die Zukunft liegen Schlaf- und Badezimmer im Erdgeschoss. Kommen die erwachsenen Kinder zu Besuch, steht ihnen das Obergeschoss zur Verfügung. Dieser Bereich kann zu einem späteren Zeitpunkt in eine separate Wohnung umgewidmet werden.

