
CityLife 400
Alles auf einen Blick
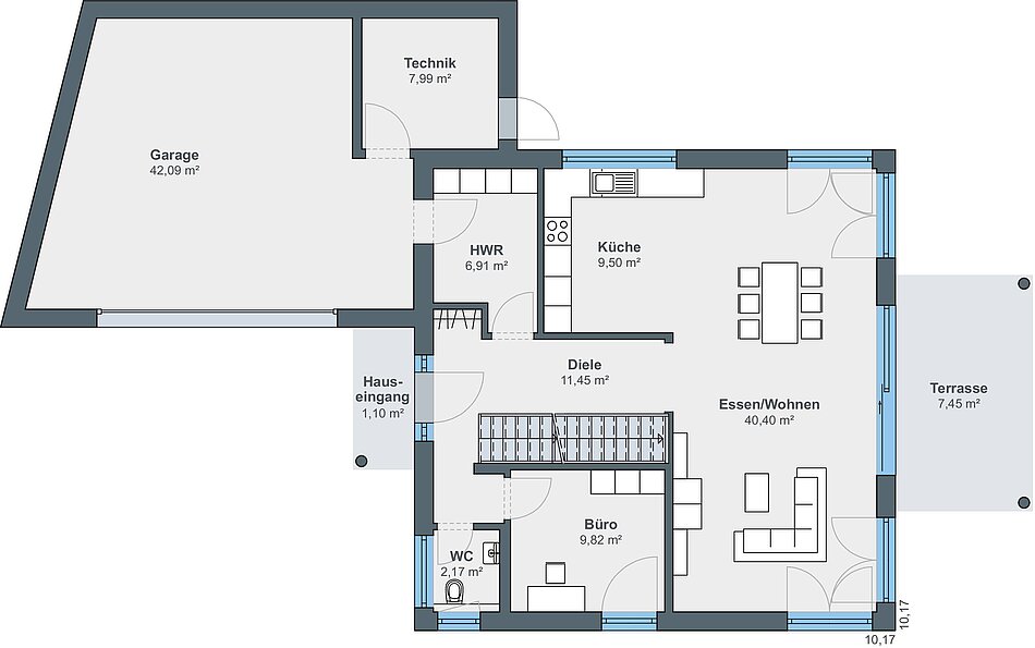
Außenmaße
10,17 x 10,17 m
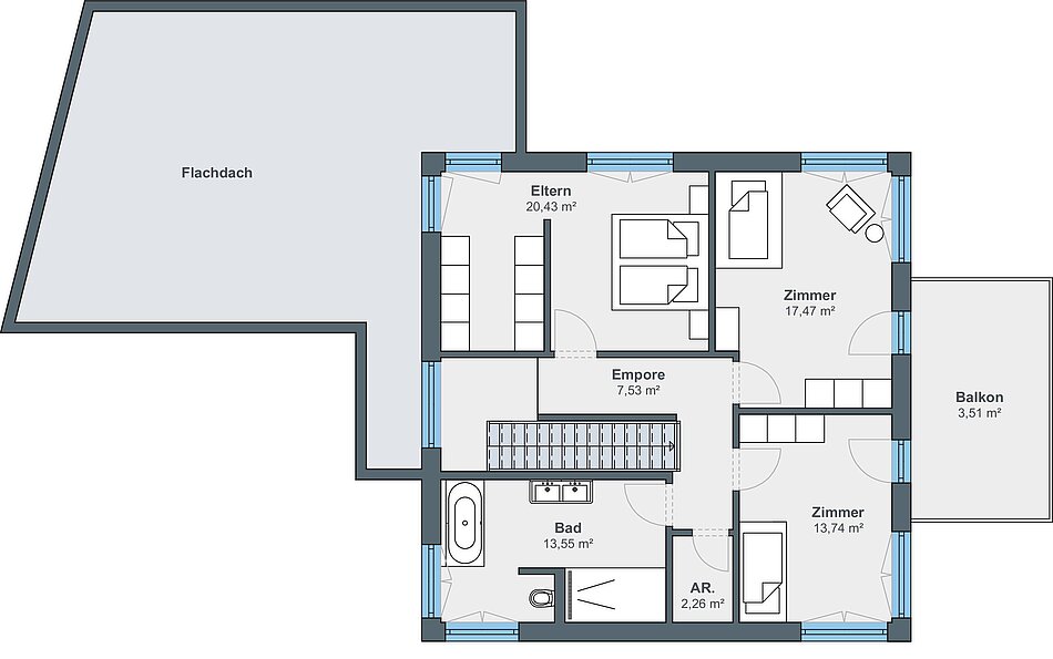
Wohnfläche
166,19 m2
Architektur
2-geschossige Häuser
Baureihe
CityLife — 400
Dachform
Zeltdach
Mehr Informationen?
Innovative Stadtvilla
Die Stadtvilla mit rund 150 Quadratmeter Wohnfläche und einem Zeltdach basiert auf der Baureihe CityLife. An das zweigeschossige Einfamilienhaus grenzt eine Garage mit direktem Zugang zum Haus. Hier befindet sich auch ein Teil der innovativen Energietechnik, die bei diesem Kundenhaus als Pilotprojekt umgesetzt wurde: Das picea-System von HPS Home Power Solution. Dabei handelt es sich um ein Kompaktgerät zur ganzjährigen autarken Energieversorgung. Die Speicheranlage wandelt nicht sofort genutzten Strom in Wasserstoff um.

