
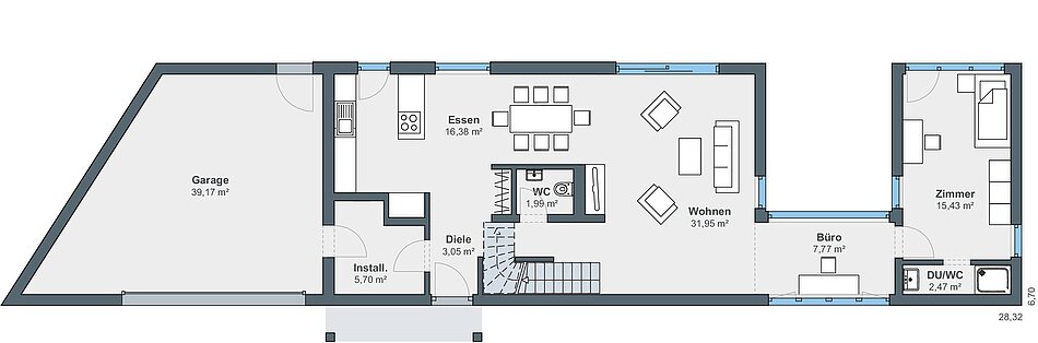
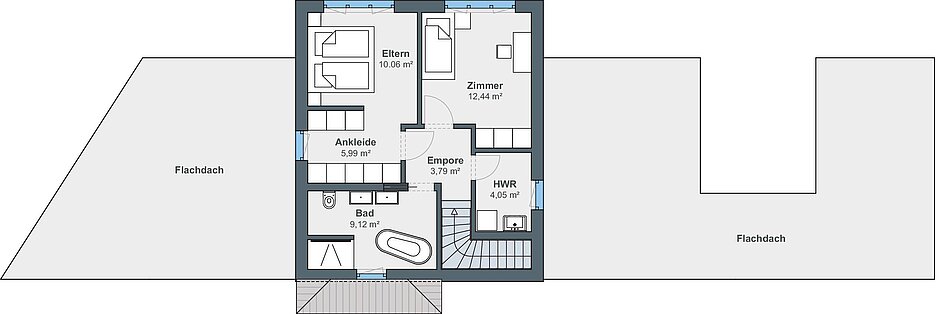
Alles auf einen Blick
Außenmaße
6,70 x 28,32 m
Wohnfläche
130,19 m2
Architektur
2-geschossige Häuser
Bauhaus-Stil
freigeplante Häuser
Dachform
Flachdach
Mehr Informationen?
Das eigene Zuhause um Kraft zu tanken
„Wir freuen uns jeden Abend, nach der Arbeit in dieses schöne Zuhause heim zu kommen.“ Diesen Satz äußert das Bauherrenpaar aus Frankreich einstimmig über ihr individuell geplantes Architektenhaus. Mit ihren beiden Kindern wohnt die Familie in einem durchgestylten Haus, dessen Grundriss ein schlanker, langgezogener Baukörper ist. Smart konzipiert finden alle Räume mit einer Geschosserhöhung auf 2,64 Meter im Erdgeschoss ihren idealen Platz. Als Sahnehaube zeigt sich in der Gartenanlage ein großer, moderner Pool, den die ganze Familie ausgiebig nutzt.

