
generation5.5 Haus 100, 2-geschossig
Alles auf einen Blick
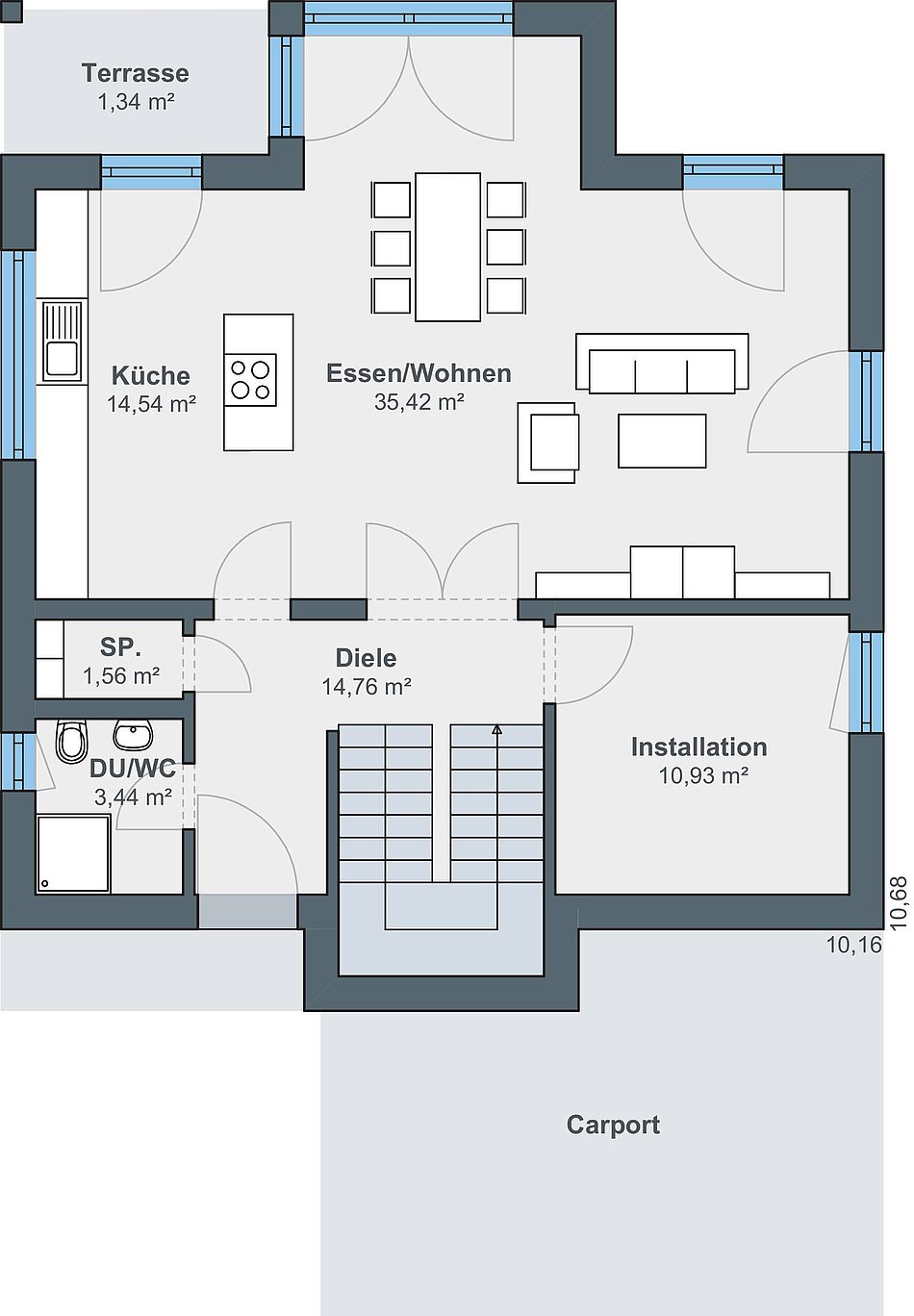
Außenmaße
10,68 x 10,10 m
Wohnfläche
151,21 m2
Architektur
2-geschossige Häuser
Baureihe
generation5.5 — Haus 100, 2-geschossig
Dachform
Satteldach
Mehr Informationen?
Großzügig im Schnitt, klassisch im Design
Das generation5.5 ist auch mit zwei Vollgeschossen und einem Satteldach umsetzbar. Der Erkeranbau im Erdgeschoss wird zur Basis für eine Balkon im Obergeschoss. Unten bildet ein großzügiger offener Wohn- Essbereich den Mittelpunkt des Lebens, oben ist Platz für ein Eltern- und zwei Kinderschlafzimmer. Optionen wie Carport oder der Technikraum bei Haus auf Bodenplatte zeigen: generation5.5 ist für alle Wünsche offen.

