
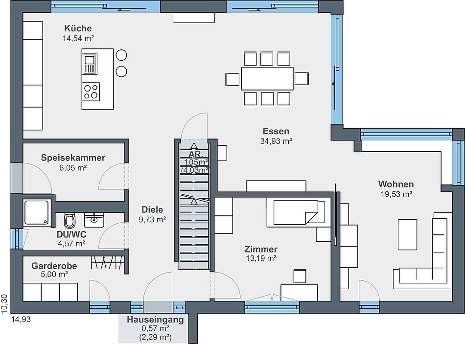
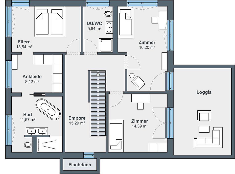
Alles auf einen Blick
Außenmaße
10,30 x 10,93 m
Wohnfläche
197,78 m2
Architektur
2-geschossige Häuser
freigeplante Häuser
Dachform
Zeltdach
Mehr Informationen?
Lichtdurchflutete Stadtvilla
Großzügige Fensterfronten in verschiedenen Formaten prägen diese einmalige Stadtvilla, die von einem Erker mit Loggia erweitert wird. Straßenseitig sind es die vertikalen Lichtbänder, die alle Blicke auf sich ziehen, zur Gartenseite öffnet sich das Gebäude mit raumhohen Verglasungen. Ein eleganter Hell-Dunkel-Kontrast dominiert das Farbszenario und verleiht dem Haus eine besondere Ästhetik. Gekrönt wird die Villa von einem modernen Zeltdach mit Photovoltaik-Anlage, die nachhaltig Energie erzeugt.

