
Alles auf einen Blick
Außenmaße
9 x 12 m
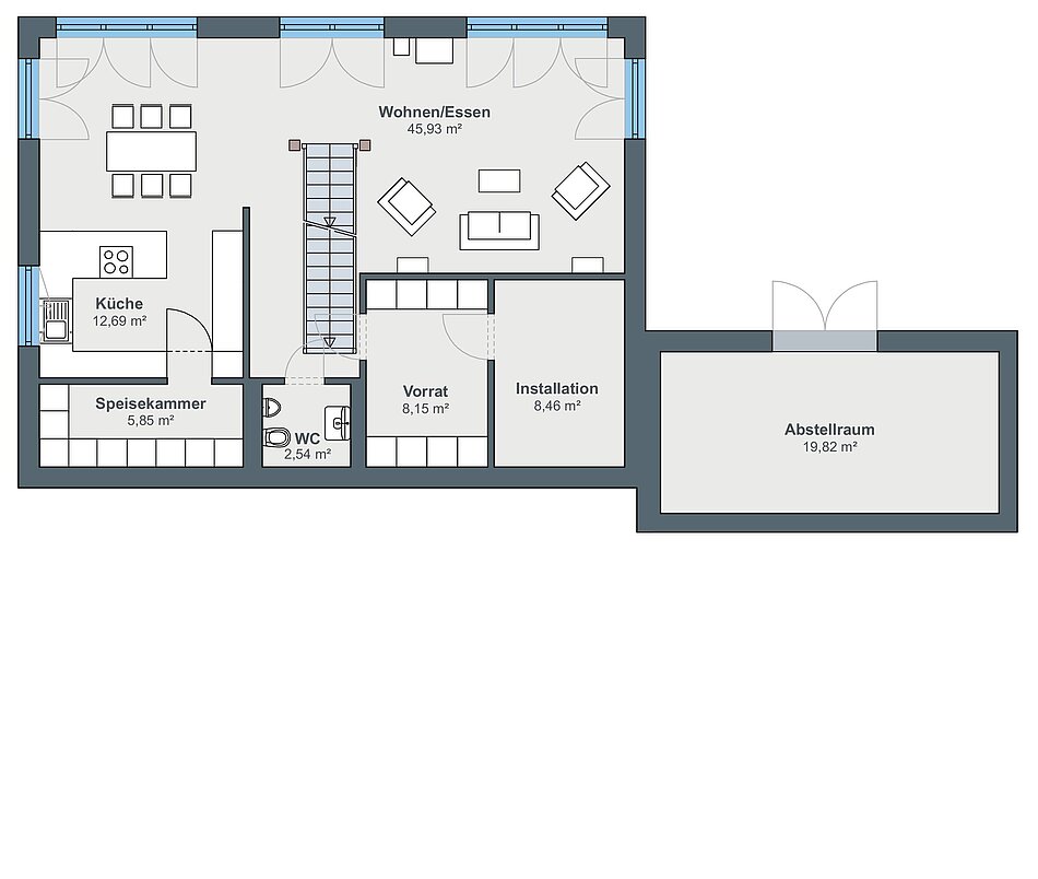
Wohnfläche
163,41 m2
Architektur
freigeplante Häuser
2-geschossige Häuser
Dachform
Satteldach
Mehr Informationen?
Modernes Landhaus
Von der Straßenseite aus gesehen, wirkt dieses Satteldachhaus wie ein Bungalow. Erst auf der Rückseite offenbart sich, dass es sich um ein Einfamilienhaus mit zwei Etagen handelt. Aufgrund der Hanglage konnte das Untergeschoss mit einer breiten Fensterfront ausgestattet werden, die die Grenzen zwischen Außen- und Innenbereich verschmelzen lässt. Blickfang sind die partiellen Holzverschalungen. Sie bestehen aus Altholz, das aus alten Häusern geborgen wurde.

