
Alles auf einen Blick
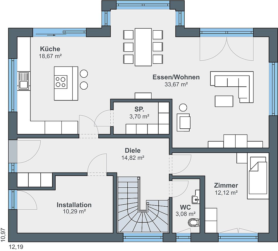
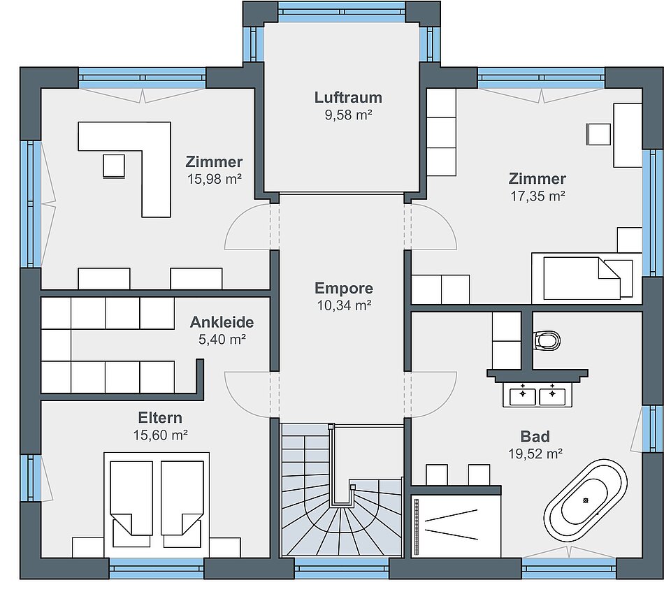
Außenmaße
10,97 x 12,19 m
Wohnfläche
180,54 m2
Architektur
2-geschossige Häuser
freigeplante Häuser
Dachform
Walmdach
Mehr Informationen?
Stadtvilla nach individueller Planung
Bei dieser Stadtvilla handelt es sich um ein frei geplantes Architektenhaus mit Walmdach. Das elegante Einfamilienhaus strahlt eine gewisse Symmetrie und Geradlinigkeit aus. Durch die gleich großen Fenster wirkt das Haus einheitlich, wie aus einem Guss. Die Farbgestaltung wird bestimmt von einem schicken Hell-Dunkel-Kontrast. Stilvoll setzen sich die anthrazitfarbenen Fensterrahmen von der strahlend weißen Putzfassade ab. Der dritte Giebel mit Satteldach erweitert die Wohnfläche und ermöglicht eine Empore.

