
Alles auf einen Blick
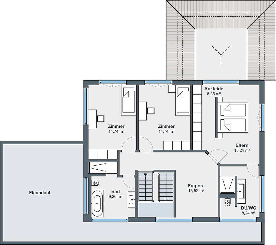
Außenmaße
11,90 x 15,30 m
Wohnfläche
191,20 m2
Architektur
2-geschossige Häuser
freigeplante Häuser
Dachform
Walmdach
Mehr Informationen?
Warmherziges Einfamilienhaus
Das individuell geplante Wohlfühlhaus mit Walmdach ist für die Bauherren ihr absolutes Traumhaus. „Wenn wir eines Tages ausziehen sollten, würden wir ohne zu zögern WeberHaus bitten, uns das gleiche Haus nochmal zu bauen“, erzählt der Familienvater. Auf zwei Vollgeschossen erstrecken sich etwa 200 Quadratmeter Wohnfläche.

