
Alles auf einen Blick
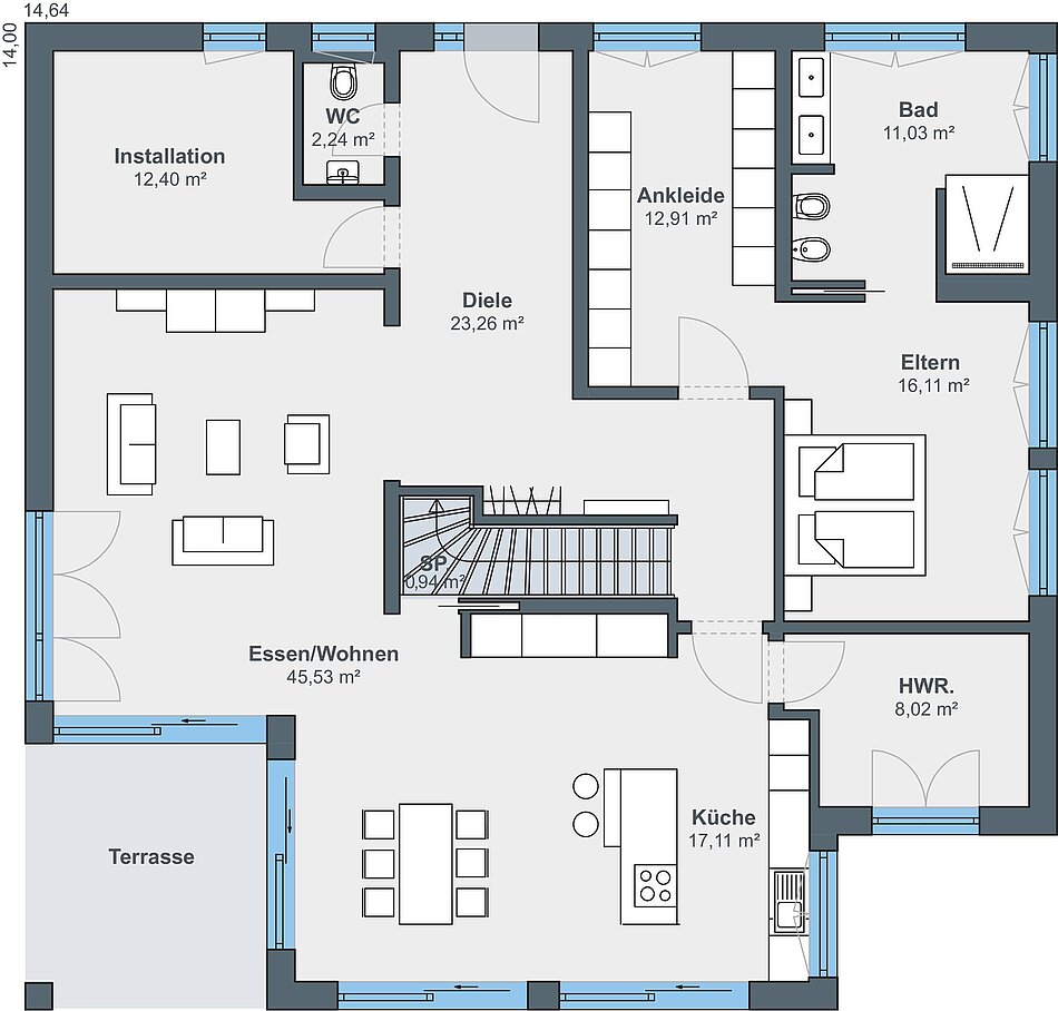
Außenmaße
14 x 14,64 m
Wohnfläche
276,84 m2
Architektur
2-geschossige Häuser
freigeplante Häuser
Dachform
Walmdach
Mehr Informationen?
Altersgerechtes Plusenergiehaus
Diese elegante Walmdachvilla, entworfen von einem Architekten, wurde perfekt auf die Bedürfnisse ihrer Bewohner abgestimmt. Blickfang ist der großzügig verglaste Erker mit Loggia on top, der sich in eine praktische Terrassenüberdachung verlängert. Auf dem Dach erstreckt sich eine leistungsstarke Photovoltaikanlage mit 14 Modulen. Mit dem kostenlosen Sonnenstrom wird nicht nur das Haus beheizt, sondern auch der Pool.

