Balance 400
Alles auf einen Blick
Außenmaße
12,98 x 10,16 m
Wohnfläche
206,64 m2
Architektur
2-geschossige Häuser
Baureihe
Balance — 400
Dachform
Walmdach
Merkliste
Mehr Informationen?

Zwei Familien – ein Haus

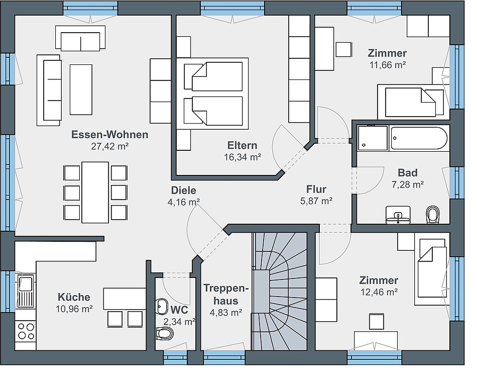
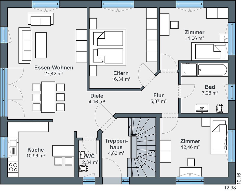
Das mit 22 Grad nur leicht geneigte Walmdach verleiht dem Balance 400 zeitlose und formvollendete Eleganz. Klare Linien schaffen ausreichend Freiraum auf zwei vollen und gleichwertigen Geschossen. Hinter der Fassade dieses modernen Rechteckhauses verbergen sich gleich zwei wunderschöne Wohnungen. Beide Wohnungen beeindrucken mit einer komfortablen Wohnfläche von etwa 100 Quadratmetern. Ein separates Treppenhaus trennt die zwei Wohnungen voneinander ab und sorgt zugleich dafür, dass sich hier niemand in die Quere kommen muss.

Clever durchdacht ist der exakt gleiche Grundriss der Wohnungen. Durch die großzügige Fensterfront wirkt der Wohn-Essbereich mit offener Küche hell und freundlich. Ein geräumiges Schlafzimmer sowie Bad lassen Wohnträume wahr werden. Zwei weitere Zimmer eröffnen vielfältige Einsatzmöglichkeiten auf jeweils 12 Quadratmetern – für die Kleinen oder beispielsweise als Büro. Genügend Platz für ein Gäste-WC ist dabei auch noch mit drin.

Grundrisse

WeberHaus Logo Lade-Animation