
Alles auf einen Blick
Außenmaße
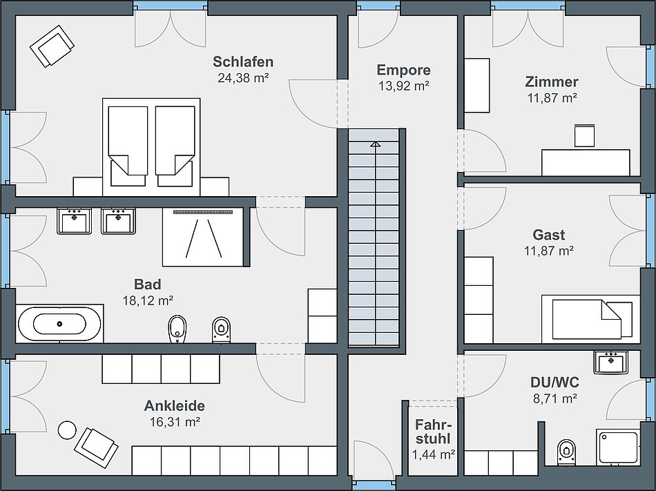
10,00 x 13,37 m
Wohnfläche
208,88 m2
Architektur
2-geschossige Häuser
Bauhaus-Stil
freigeplante Häuser
Dachform
Flachdach
Mehr Informationen?
Barrierefreies Traumhaus in zeitloser Ästhetik
Für das Ehepaar Janssen war vor allem wichtig, dass das neue Zuhause barrierefrei ist, damit sich der Hausherr mit seinem Rollstuhl selbständig bewegen kann. Entstanden ist ein puristisches Architektenhaus im Bauhaus-Stil. Das Haus mit Flachdach verfügt über rund 210 Quadratmeter Wohnfläche.

