
Elegante Stadtvilla mit großem Wintergarten
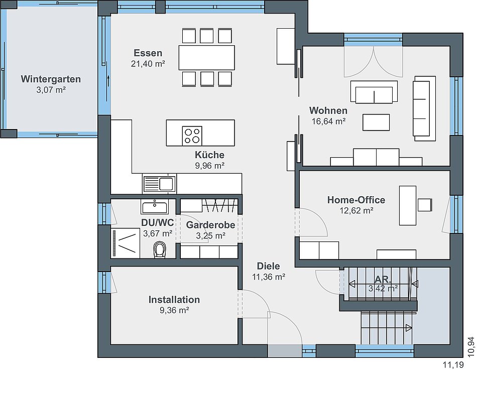
In idyllischer Lage am Stadtrand entstand diese elegante Stadtvilla. Blickfang sind die vielen Fenster und Verglasungen in den unterschiedlichsten Formaten, die herrliche Ausblicke in die Natur ermöglichen. Die grauen Fensterrahmen setzen spannende Akzente zur strahlend weißen Putzfassade. Verstärkt wird der Hell-Dunkel-Kontrast durch die grau abgesetzten Fassadenbereiche. Absolutes Highlight ist der große Wintergarten, der das Haus auf der Gartenseite erweitert. Die Glaselemente lassen sich zusammenschieben, sodass ein überdachter Freisitz entsteht. Auf dem Zeltdach befindet sich eine leistungsstarke Photovoltaikanlage mit 16 Modulen.

