
CityLife 600
Alles auf einen Blick
Außenmaße
13,91 x 10,79 m
Wohnfläche
216,58 m2
Architektur
2-geschossige Häuser
Baureihe
CityLife — 600
Dachform
Walmdach
Mehr Informationen?
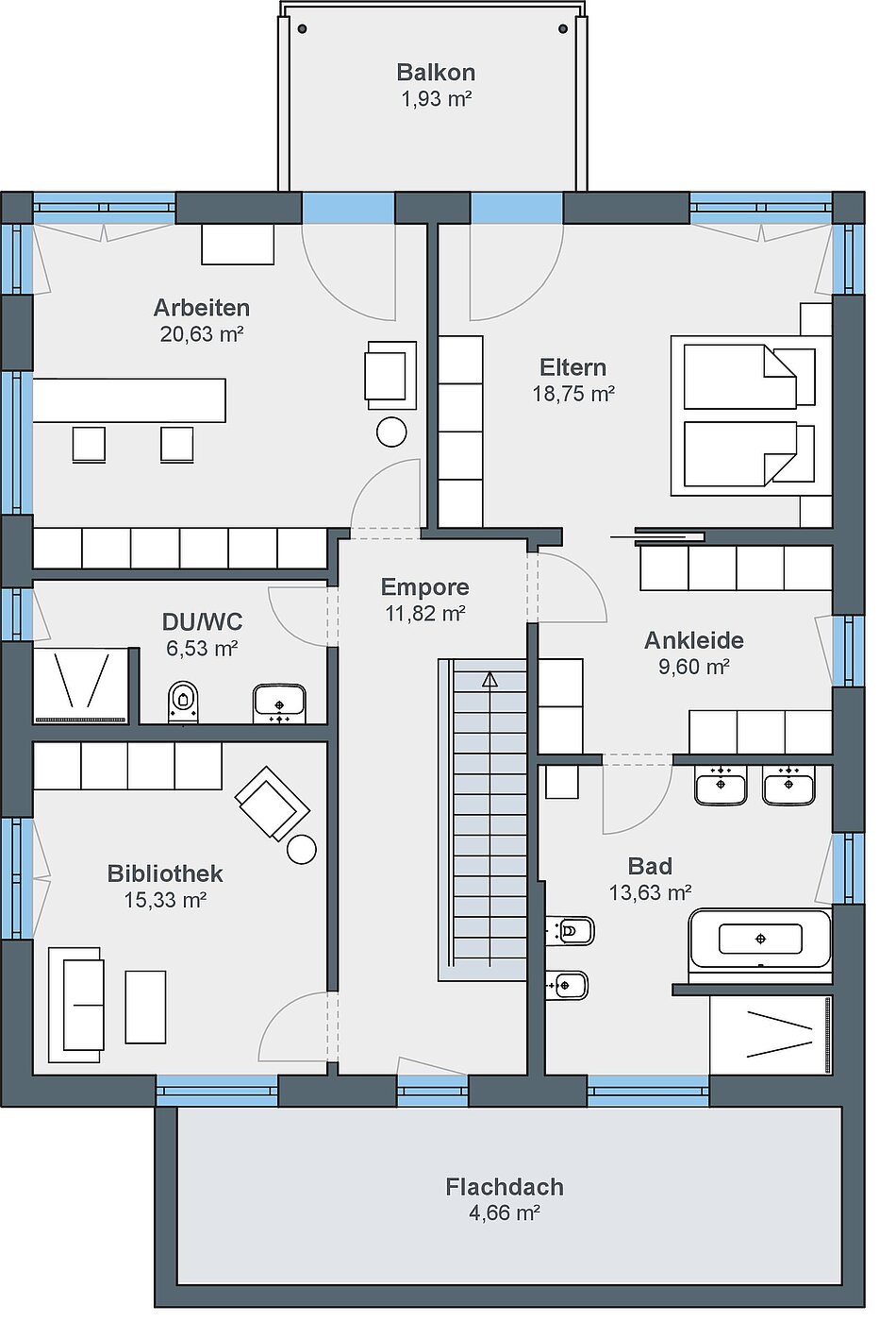
Großzügiges Stadthaus für Zwei
Das Ehepaar Paulsen hat ihr Traumhaus in der Baureihe CityLife entdeckt. „Wir freuen uns jeden Tag aufs Neue, in diesem komfortablen und schönen Haus wohnen zu können“, schwärmen die Hausbesitzer. Das Stadthaus mit seinen zwei Vollgeschossen und dem Walmdach bietet eine Wohnfläche von rund 220 Quadratmetern.Hinzu kommt ein Weberith-Keller. Farbige Akzente und Fensterrahmen in Grau lockern die ansonsten weiße Außenfassade auf. Passend dazu haben sich die Hausbesitzer für graue Dachziegeln entschieden.

