
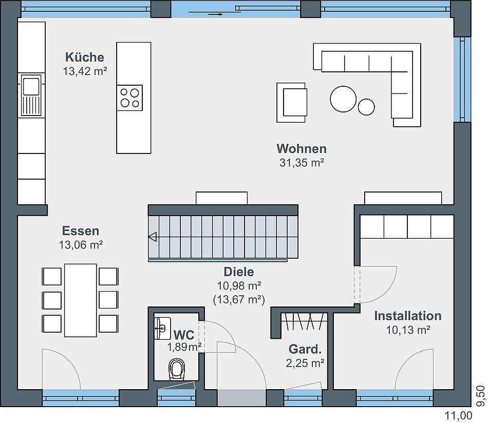
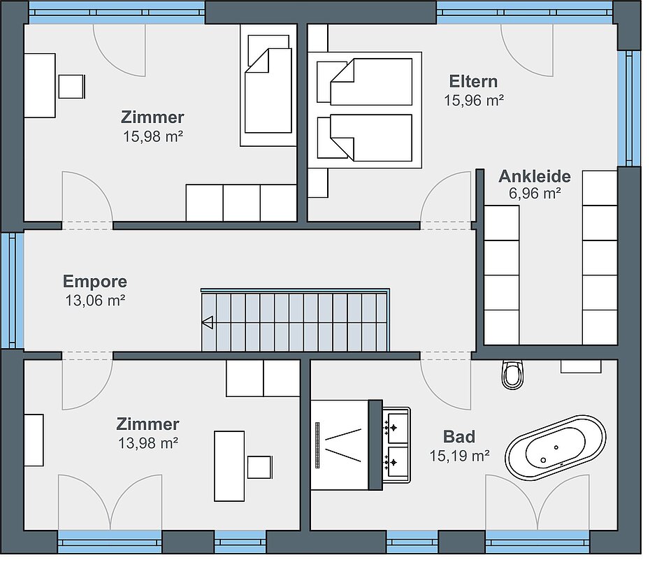
Effiziente Villa im Bauhaus-Look
Wie eine weiße Skulptur erhebt sich diese elegante Bauhaus-Villa über das ländlich gelegene Grundstück. Die streng symmetrisch angeordneten Fensterflächen fügen sich harmonisch in das Gesamtbild ein. Auf der Straßenseite wechseln sich senkrechte Lichtbänder mit zweiflügeligen Fenstertüren ab. Die Gartenseite wurde mit raumhohen Verglasungen ausgestattet, die die Natur als eindrucksvolles Panorama in die Wohnräume bringen. Auf dem Dach des geradlinigen Neubaus befindet sich eine leistungsstarke Photovoltaikanlage mit 16 Modulen, die einen Batteriespeicher speist.
Innenausbau: Raumvision Michael Lang, Fotografie: Trojan Design

