
Alles auf einen Blick
Außenmaße
15,33 x 10,16 m
Wohnfläche
205,69 m2
Architektur
freigeplante Häuser
1,5-geschossige Häuser
Dachform
Satteldach
Mehr Informationen?
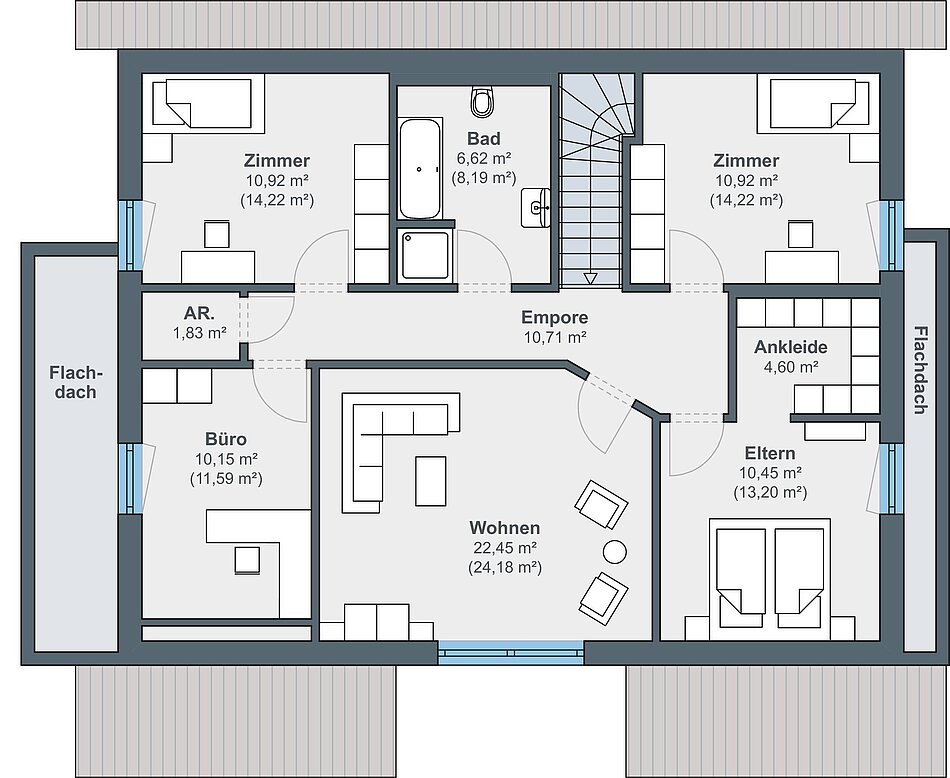
Effizienzhaus 40 mit zwei Wohneinheiten
Dieses anderthalb-geschossige Effizienzhaus 40 mit Satteldach verfügt über zwei Wohneinheiten. Zwei Erker erweitern den Wohnraum und ein dritter Giebel sorgt im Dachgeschoss für mehr Offenheit. Links und rechts vom Giebel wurde das Satteldach verlängert, so dass die Terrassen überdacht sind.

