
Ein Haus, das Kinderaugen leuchten lässt
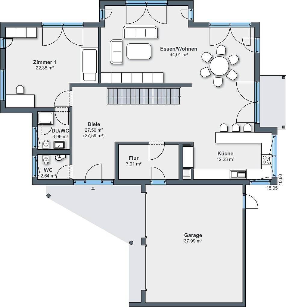
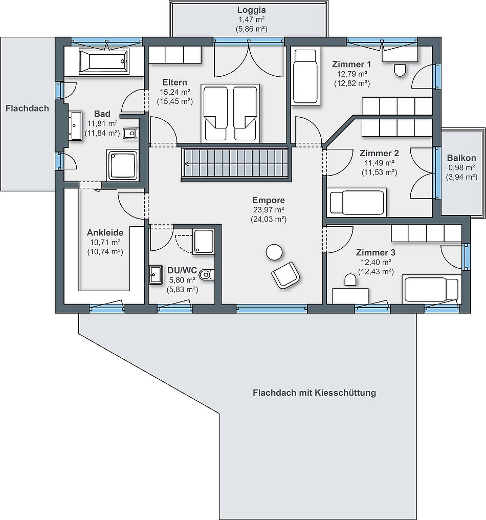
Im eigenen Zuhause möchte man auf nichts verzichten. Das dachten sich auch die Bauherren dieses frei geplanten Weber-Hauses und erfüllten sich und ihren Kindern den Wunsch nach einem maßgeschneiderten Eigenheim. Während das Erdgeschoss der kommunikative Mittelpunkt des Hauses ist, hat jedes Familienmitglied im Dachgeschoss seinen eigenen Bereich. Die warme Jahreszeit kann die Baufamilie auf mehreren Balkonen und einer riesigen Terrasse genießen. Zum Abkühlen und Spaß haben lädt ein großzügig angelegter Pool ein, der für die Kinder ein ganz besonderes Highlight ist. Die Fassade des Hauses wurde im Farbton Weiß verputzt. Graue Elemente schaffen einen gelungen Kontrast und ein versetztes Pultdach verleiht dem Haus das gewisse Etwas.

