
Alles auf einen Blick
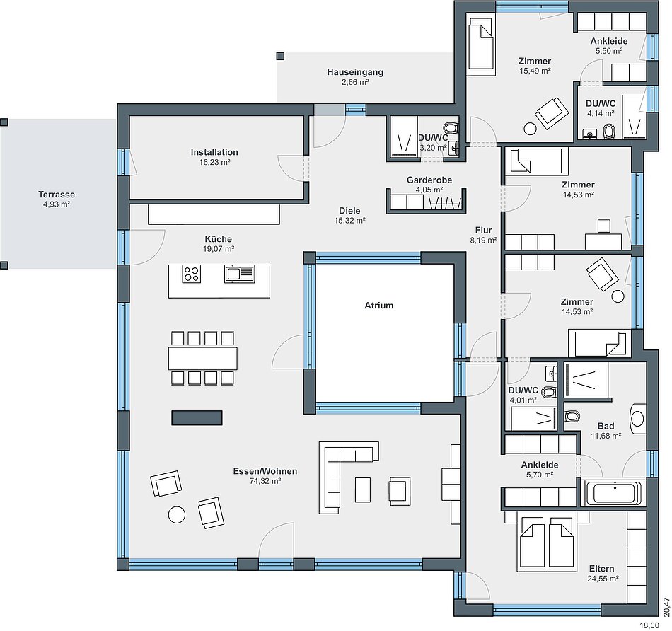
Außenmaße
20,47 x 18,00 m
Wohnfläche
248 m2
Architektur
1-geschossige Häuser (Bungalow)
freigeplante Häuser
Winkelhaus
Dachform
Flachdach
Mehr Informationen?
Frei geplanter Bungalow
Mit Blick in die Zukunft haben sich die Bauherren dazu entschlossen, ihr eigenes Traumhaus zu bauen. Deshalb kam für das Paar nur ein Bungalow in Frage, den sie ganz nach ihren individuellen Bedürfnissen von WeberHaus frei planen ließen. Unterstützt wurden sie von Martin Geyer, Bauberater im Raum Berlin. Neben dem Wunsch auf einer Ebene zu wohnen war den beiden ausreichend Platz sehr wichtig. Deshalb verfügt der Bungalow über eine Wohnfläche von rund 250 Quadratmeter. Die Fassade ist teilweise mit Holz verkleidet, um das Haus der ländlichen Umgebung anzupassen.
