
generation5.5 150
Alles auf einen Blick
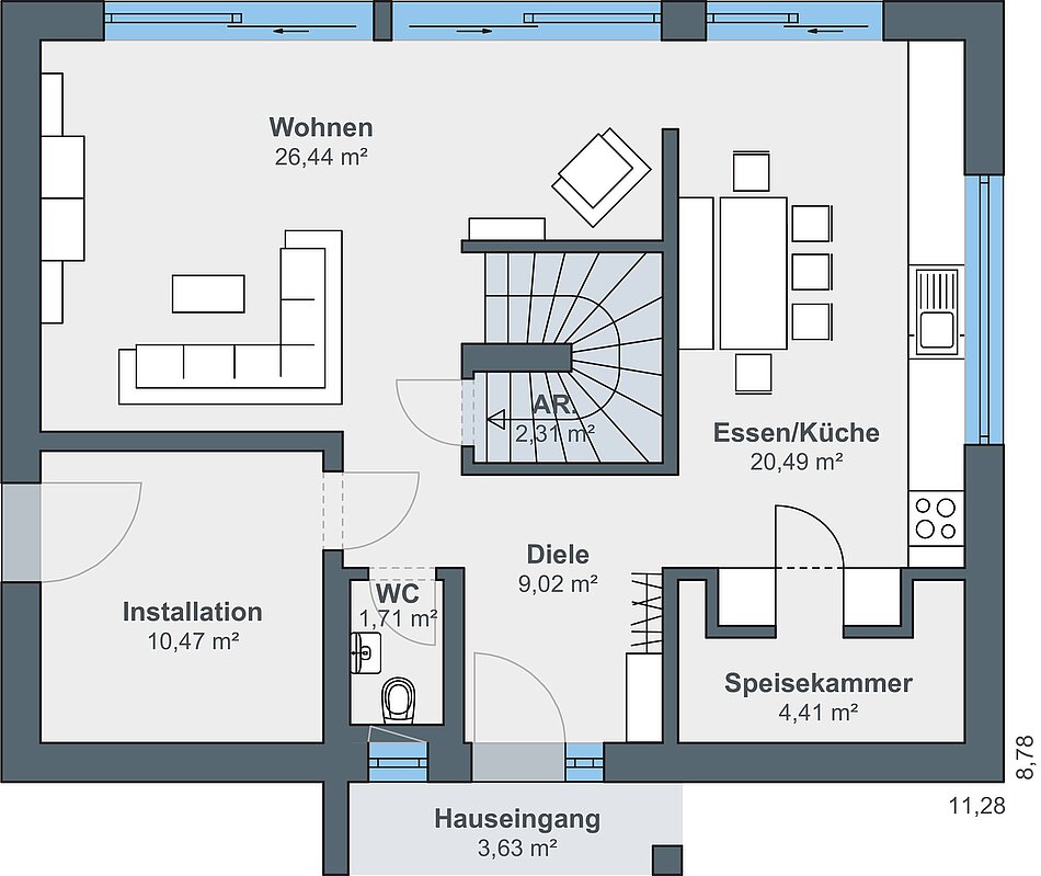
Außenmaße
8,78 x 11,28 m
Wohnfläche
143,81 m2
Architektur
1,5-geschossige Häuser
Baureihe
generation5.5 — 150
Dachform
Satteldach
Mehr Informationen?
Modernes Haus mit dunkler Holzverschalung
Das Einfamilienhaus überzeugt durch seine geradlinige Architektur. Das Satteldach ohne Dachüberstand unterstreicht den modernen Charakter. Die unterschiedlichen Fensterformate sowie der Zwerchgiebel mit Flachdach sorgen für Spannung. Außergewöhnlich ist die dunkelgraue Holzverschalung des Hauses. Den Hausbesitzern war es wichtig, dass es lasiertes und kein lackiertes Holz ist, um die Natürlichkeit zu bewahren. Das Haus verfügt über etwa 140 Quadratmeter Wohnfläche und bietet Platz für drei Bewohner.

