
generation5.5 200
Alles auf einen Blick
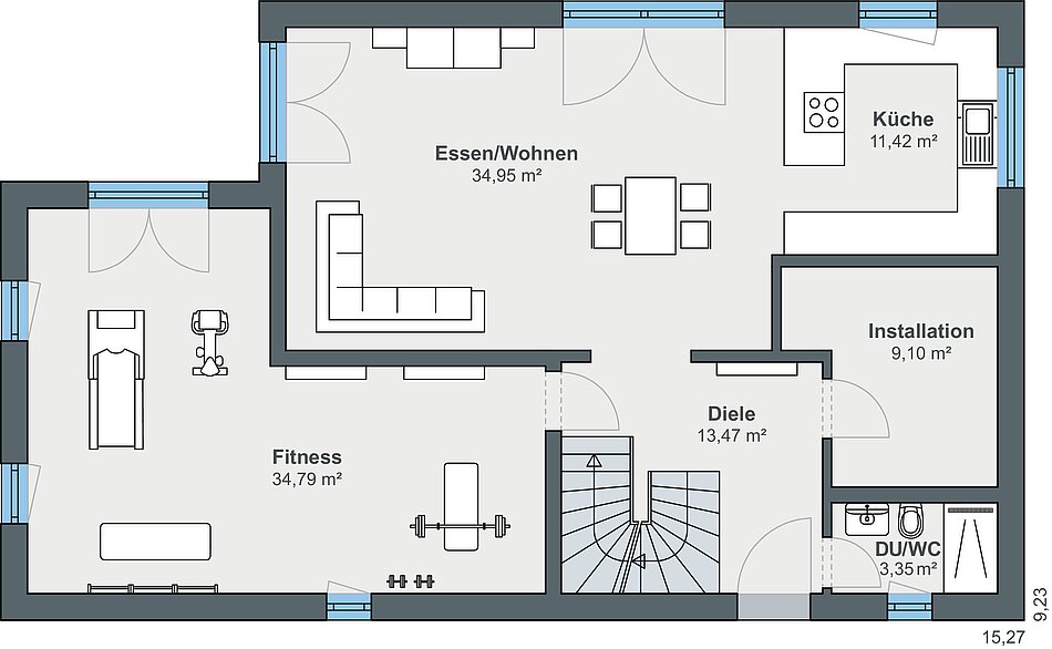
Außenmaße
9,23 x 11,41 m
Wohnfläche
188,69 m2
Architektur
1,5-geschossige Häuser
Baureihe
generation5.5 — 200
Dachform
Satteldach
Mehr Informationen?
Schlichtes Eigenheim mit großem Erker
Dieses Fertighaus in ökologischer Holzbauweise basiert auf der Baureihe generation5.5 und verfügt über insgesamt 188 Quadratmeter Wohnfläche. Das Erdgeschoss wird durch einen großen Flachdach-Anbau erweitert. Das anderthalbgeschossige Eigenheim verfügt über einen hohen Kniestock sowie ein Satteldach mit Photovoltaik-Anlage. Der Baukörper zeigt sich schlicht in Weiß mit Fensterrahmen in Anthrazit. Über eine zwei-flügelige Glastür gelangt man auf die Terrasse. Eine Pergola mit seitlichem Sichtschutz verwandet den Bereich in einen gemütlichen Rückzugsort.

