
generation5.5 300
Alles auf einen Blick
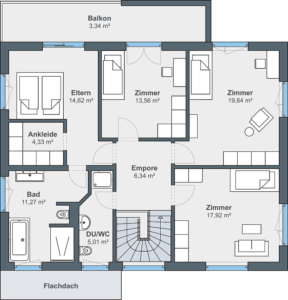
Außenmaße
12,78 x 12,28 m
Wohnfläche
208,16 m2
Architektur
2-geschossige Häuser
Baureihe
generation5.5 — 300
Dachform
Walmdach
Mehr Informationen?
Energiewunder mit viel Platz
Den großen Wunsch nach mehr Platz konnte sich die vierköpfige Familie mit ihrem Traumhaus aus der Baureihe generation5.5 mit zwei Vollgeschossen erfüllen. Die Bauherren setzten bei der Außenfassade auf einen stilvollen, weißen Putz. In Verbindung mit den anthrazitgrauen Fensterrahmen und dem Walmdach wirkt das Einfamilienhaus zeitlos modern.Das Stadthaus bietet mit rund 210 Quadratmetern genügend Wohnfläche. Mit der Photovoltaik-Anlage auf dem Dach erzeugen die Hausbesitzer ihren eigenen Strom.

