
generation5.5 Haus 200, 2-geschossig
Alles auf einen Blick
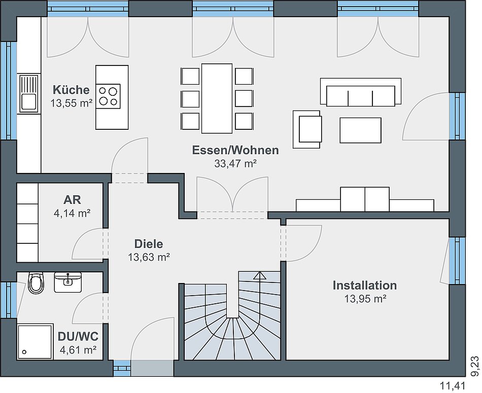
Außenmaße
9,23 x 11,41 m
Wohnfläche
163,39 m2
Architektur
2-geschossige Häuser
Baureihe
generation5.5 — Haus 200, 2-geschossig
Dachform
Satteldach
Mehr Informationen?
Außen wie innen ein echtes Glanzstück
Darf’s ein bisschen großzügiger sein? Durch die zwei vollwertigen Geschosse bietet das generation5.5 200 noch mehr Freiräume für Paare und Familien. Sattel-, Walm- oder Flachdach? Sie haben die Wahl! So ansprechend wie dieses Haus von außen ist, so überzeugend sind seine inneren Werte. Das Erdgeschoss begeistert mit einem riesigen Wohn-Essbereich, im Obergeschoss eröffnen sich vielfältige Entfaltungsmöglichkeiten für alle Bewohner. Kurz: Sagenhaftes Wohnvergnügen auf geräumigen 160 Quadratmetern.

