
generation5.5 Haus 200
Alles auf einen Blick
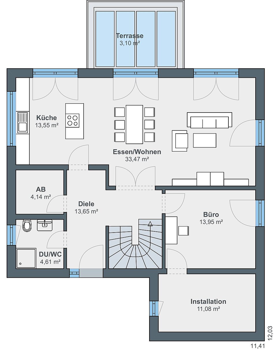
Außenmaße
12,03 x 11,41 m
Wohnfläche
164,64 m2
Architektur
1,5-geschossige Häuser
Baureihe
generation5.5 — Haus 200
Dachform
Pultdach versetzt
Mehr Informationen?
Viel Raum für Extra-Wünsche
Großzügige Grundrisse, moderne, reduzierte Formen und mit dem leicht versetzten Pultdach beste Voraussetzungen für eine Photovoltaikanlage: So könnte Ihr generation5.5 als PlusEnergie-Haus aussehen. Auf eineinhalb Geschossen ist reichlich Platz für Komfort-Extras wie das flexibeln nutzbare Zimmer im Erdgeschoss oder die große Ankleide neben dem Elternschlafzimmer. Über die Terrasse, auf die man vom Wohn-Essbereich gelangt, bietet sich eine Pergola an. Optionen? Viele. Zum Beispiel eine Garage mit überdachter Verbindung zum Haus und zusätzlichem Abstellraum.

