
generation5.5 Haus 300, 2-geschossig
Alles auf einen Blick
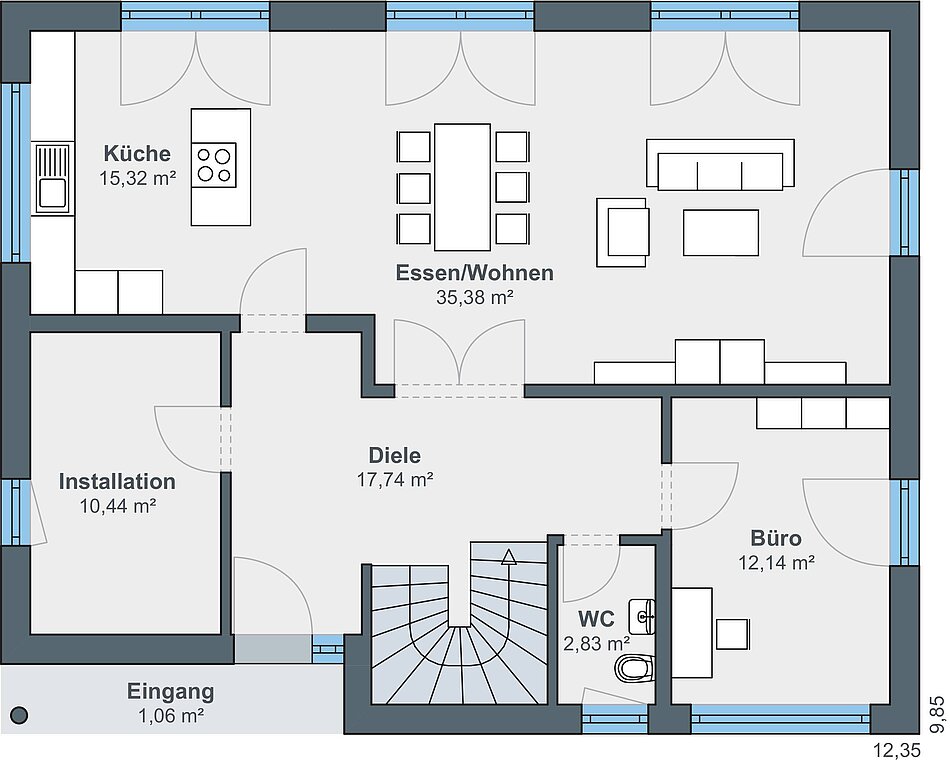
Außenmaße
9,85 x 12,35 m
Wohnfläche
200,33 m2
Architektur
2-geschossige Häuser
Baureihe
generation5.5 — Haus 300, 2-geschossig
Dachform
Satteldach
Mehr Informationen?
Fast 200 Quadratmeter Wohlfühlfläche
Ob mit Sattel-, Walm- oder Flachdach: Die extragroße Variante von generation5.5 sieht mit jeder Dachform schick aus. Wählen Sie nach Ihren Vorlieben und eventuellen Bauvorschriften. Über die optischen Vorzüge hinaus ist dieser Entwurf mit zwei vollwertigen Wohnebenen ideal für alle, die es schön großzügig mögen. Sage und schreibe 200 Quadratmeter warten darauf, von Ihnen gestaltet zu werden. Absolutes Highlight ist zweifellos der geräumige Wohn-Essbereich im Erdgeschoss, auf Wunsch mit offener oder geschlossener Küche.

