vorgeplantes generation5.5
generation5.5 Haus 300
Alles auf einen Blick
Außenmaße
9,85 x 12,35 m
Wohnfläche
176,58 m2
Architektur
1,5-geschossige Häuser
Baureihe
generation5.5 — Haus 300
Dachform
Pultdach versetzt
Merkliste
Mehr Informationen?

Hier sind Besucher jederzeit willkommen

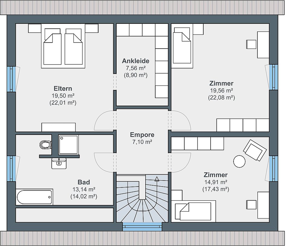
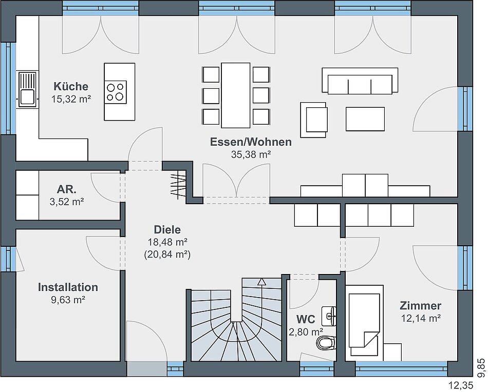
Während unten im Ofen die Lasagne schmort, findet oben im Büro die Telefonkonferenz statt. Und die Kinder? Spielen auf der großen Terrasse mit ihren Freunden. Im generation5.5 Entwurf 300 findet jeder den Freiraum, den er braucht, um danach im großzügigen Wohn- und Esszimmer wieder zusammenzukommen. Im Erdgeschoss hat das Extrazimmer direkten Zugang zum Duschbad. Ideal für Gäste oder Senioren. Oben reihen sich neben vier Zimmern ein großes und ein kleines Bad rund um die helle Empore.

Grundrisse

WeberHaus Logo Lade-Animation