
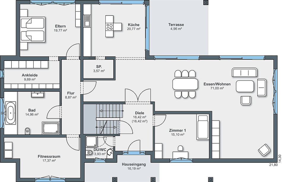
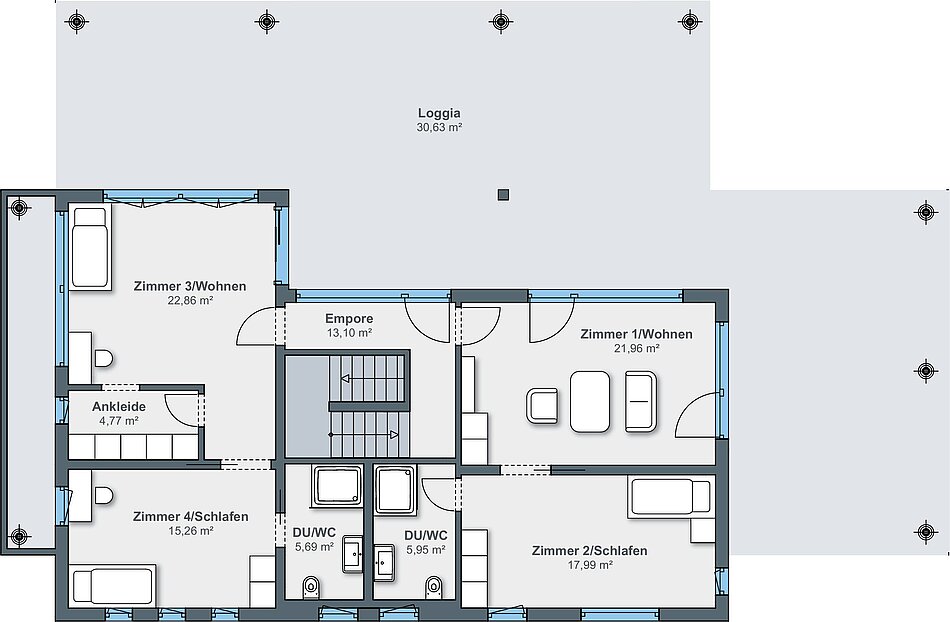
Luxusvilla im Bauhaus-Stil
Architektonisch verbindet das individuell geplante Haus modernen Bauhausstil mit den Vorteilen des Wohnkonzeptes "ebenLeben". Die Linien sind klar, schlicht und doch stilvoll. Besonders edel wirkt der Kontrast zwischen der weiß verputzten Außenfassade und den anthrazitfarbenen Holz-Alu-Fenstern.
Auch wenn es so aussieht – das Dach ist kein Flachdach, sondern ein integriertes Satteldach mit einer extrem flachen Neigung von sechs Grad. Der Grund dafür war, dass die zuständige Baubehörde ein Flachdach nicht genehmigte. Um weiteren Nutzraum zu gewinnen, entschied sich die Baufamilie dafür, das gesamte Gebäude zu unterkellern. Neben einem Hobby- und einen Partyraum findet sich hier auch der Technikraum mit einer hocheffizienten Wärmepumpe.

