
myLife 200
Alles auf einen Blick
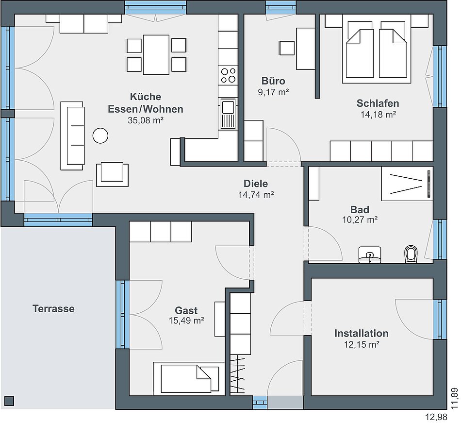
Außenmaße
12,98 x 11,89 m
Wohnfläche
111,08 m2
Architektur
1-geschossige Häuser (Bungalow)
Baureihe
myLife — 200
Dachform
Walmdach
Mehr Informationen?
Barrierearmer Bungalow für zwei
Möglichst lange selbstbestimmt in den eigenen vier Wänden leben – dieser barrierearmer Bungalow lässt den Wunschtraum zur Realität werden. Von außen zeigt sich der Neubau schlicht, aber dennoch sehr elegant. Mit seiner weiß verputzen Fassade und dem dunkel eingedeckten Walmdach fügt er sich harmonisch in die Bebauungssituation ein. Blickfang ist nicht nur die breite Fensterfront auf der Gartenseite, sondern vor allem der Rücksprung, der Raum für eine überdachte Terrasse schafft.
