
Minimalistisch und elegant: Perfekt für Paare
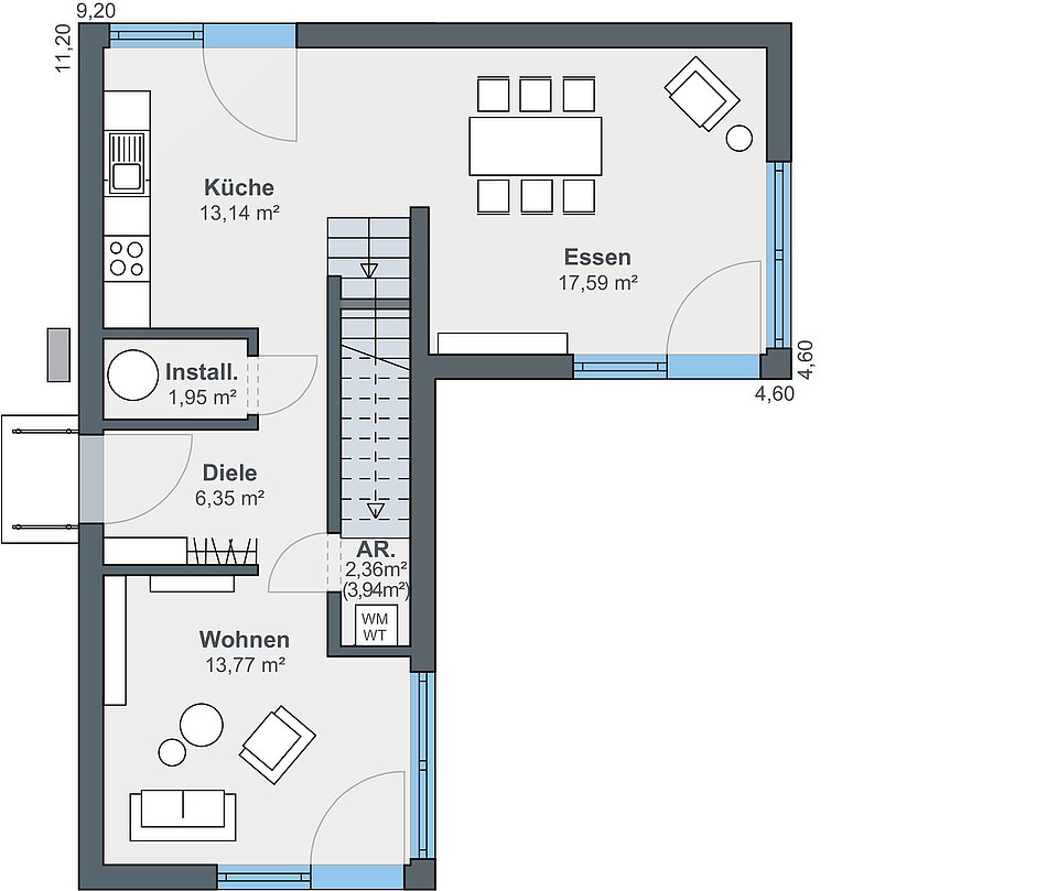
Dieser Entwurf aus der Baureihe OPTION präsentiert eine zweigeschossige Variante mit praktischem Anbaumodul, das neben dem Essbereich oder optional neben der Küche platziert werden kann. Wie alle Häuser dieser Reihe überzeugt es durch klare Linien und minimalistische Architektur, die sich auf das Wesentliche konzentriert. Die edle Holzfassade strahlt Ruhe und Wärme aus, während die großzügigen Fenster lichtdurchflutete Räume schaffen. Perfekt für Singles oder Paare, bietet das zweigeschossige Haus mit Anbaumodul ein durchdachtes Raumkonzept mit einem geräumigen Schlafzimmer und einem separaten Home-Office. Der funktionale Grundriss und das klare Design schaffen eine harmonische Atmosphäre – ohne überflüssigen Ballast, dafür mit Fokus auf Komfort und moderne Eleganz.
Preis-Beispiel
Preisstand: 01.05.2025

