
Innovativ Wohnen mit OPTION
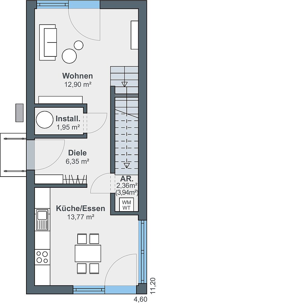
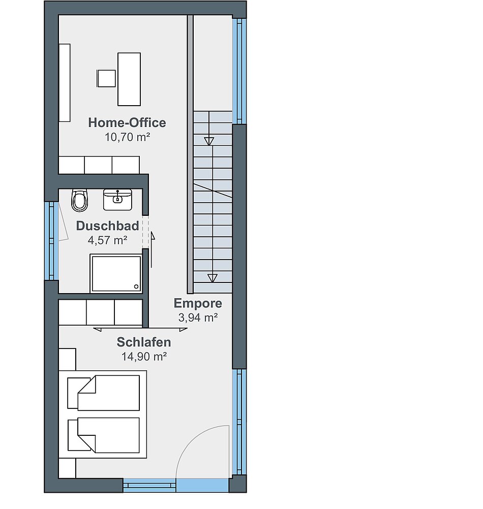
Die Baureihe OPTION vereint Design und hochwertige Materialien, um kompaktes Wohnen und individuellen Freiraum mit wirtschaftlicher Attraktivität zu verschmelzen. Der Fokus liegt auf der Idee, dass wahre Wohnqualität nicht durch übermäßige Raumgröße, sondern durch raffinierte Grundrissplanung entsteht. Die zweigeschossige Variante präsentiert sich auf der Vorderseite zurückhaltend, während die Rückseite von großen, bodentiefen Fenstern geprägt ist. Die vertikale Holzschalung verleiht dem Haus ein warmes und dennoch modernes Erscheinungsbild. Mit einer Länge von über elf Metern und einer Breite von 4,6 Metern bietet OPTION etwa 70 m2 Wohnfläche.
Einfach, komfortabel und inspirierend:
Die virtuelle Hausbesichtigung per 360 Grad-Rundgang. Klicken Sie sich ins Haus.
Preis-Beispiel
Preisstand: 01.05.2025

