Alles auf einen Blick
Außenmaße
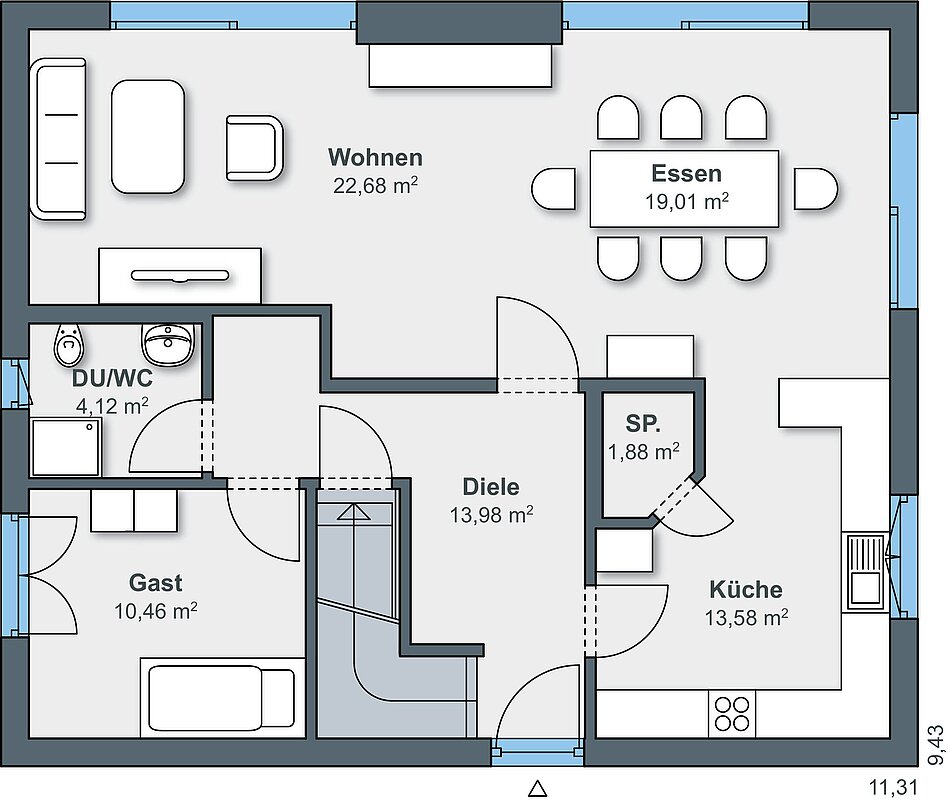
11,31 x 9,43 m
Wohnfläche
168,00 m2
Architektur
1,5-geschossige Häuser
freigeplante Häuser
Regionaler-Stil
Landhaus-Stil
Dachform
Satteldach
Merkliste
Mehr Informationen?

Platz und Komfort für die ganze Familie

In diesem wunderschönen WeberHaus kann man sich nur wohlfühlen. Die 168 Quadratmeter große Wohnfläche entspricht bis ins kleinste Detail den Vorstellungen und Wünschen der Baufamilie. Optisch besticht es mit einer modernen, hellgrauen Holzfassade, die dem Haus einen warmen und freundlichen Charakter verleiht. Den perfekten Kontrast bildet das dunkle Satteldach, das das rechteckig geschnittene Haus zu einem echten Blickfang macht.

Grundrisse

WeberHaus Logo Lade-Animation