
Alles auf einen Blick
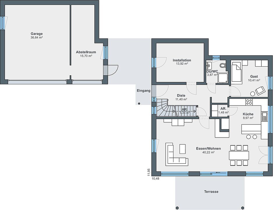
Außenmaße
10,48 x 11,95 m
Wohnfläche
174,09 m2
Architektur
2-geschossige Häuser
freigeplante Häuser
Mehr Informationen?
Stadthaus mit Satteldach
Die Besitzer von diesem WeberHaus haben schon immer von einer Stadtvilla geträumt. Am liebsten mit zwei Etagen und einem Grundriss, der eine freie Raumaufteilung möglich macht. Das beinahe quadratische Einfamilienhaus mit rund 170 Quadratmetern wird von einem Satteldach gekrönt. Holz-Applikationen an der Fassade und dem Garagentor lockern das ansonsten weiß verputze Eigenheim auf und verbinden die beiden Gebäude optisch miteinander. Ausgestattet mit der Frischluft-Wärmetechnik, einer Photovoltaik-Anlage und einem Batteriespeicher erfüllt das Einfamilienhaus die hohen Voraussetzungen für ein KfW-Effizienzhaus 40 Plus.

