
Alles auf einen Blick
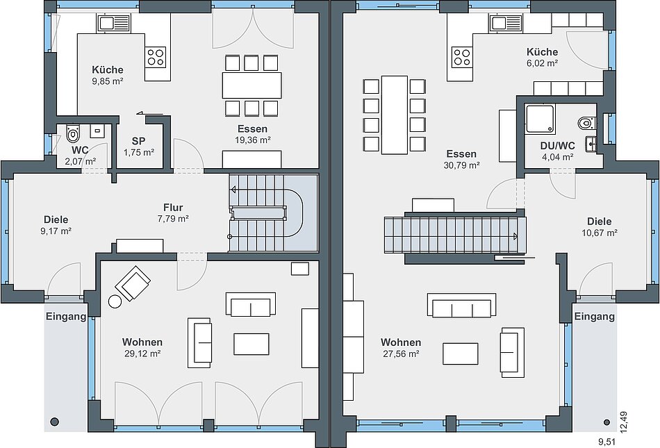
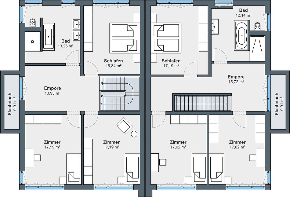
Außenmaße
9,51 x 12,49 m
Wohnfläche
159,08 m2
Architektur
2-geschossige Häuser
freigeplante Häuser
Dachform
Flachdach
Mehr Informationen?
Tür an Tür: Modern und energieeffizient
Von außen kommen die zweigeschossigen Doppelhaushälften identisch daher. In Kombination mit dem Flachdach, dem weißen Putz und den großen Fensterflächen erinnert das Doppelhaus an den Bauhaus-Stil. Der weiße Außenputz mit den grauen Fenstern lässt das Gebäude zeitlos modern wirken. Jede Hälfte bietet 160 Quadratmeter Wohlfühlatmosphäre. Große Glasfronten sorgen für ausreichend Licht im Hausinnern.

